+86 19903521023
contact@tuobacity.com
工作时间:周一至周六 早8:30~晚5:30
搜索...
中文
|
En
首页
项目介绍
项目介绍
招商合作
招商团队
常见问题
入驻意向提交
关于大同
加入我们
资讯与活动
项目资讯
其他资讯
大同文旅及景点
图片视频
图片专区
视频专区
入驻
入驻拓跋竞技城
拓跋免费公寓
政策及法规
联系我们
图片专区
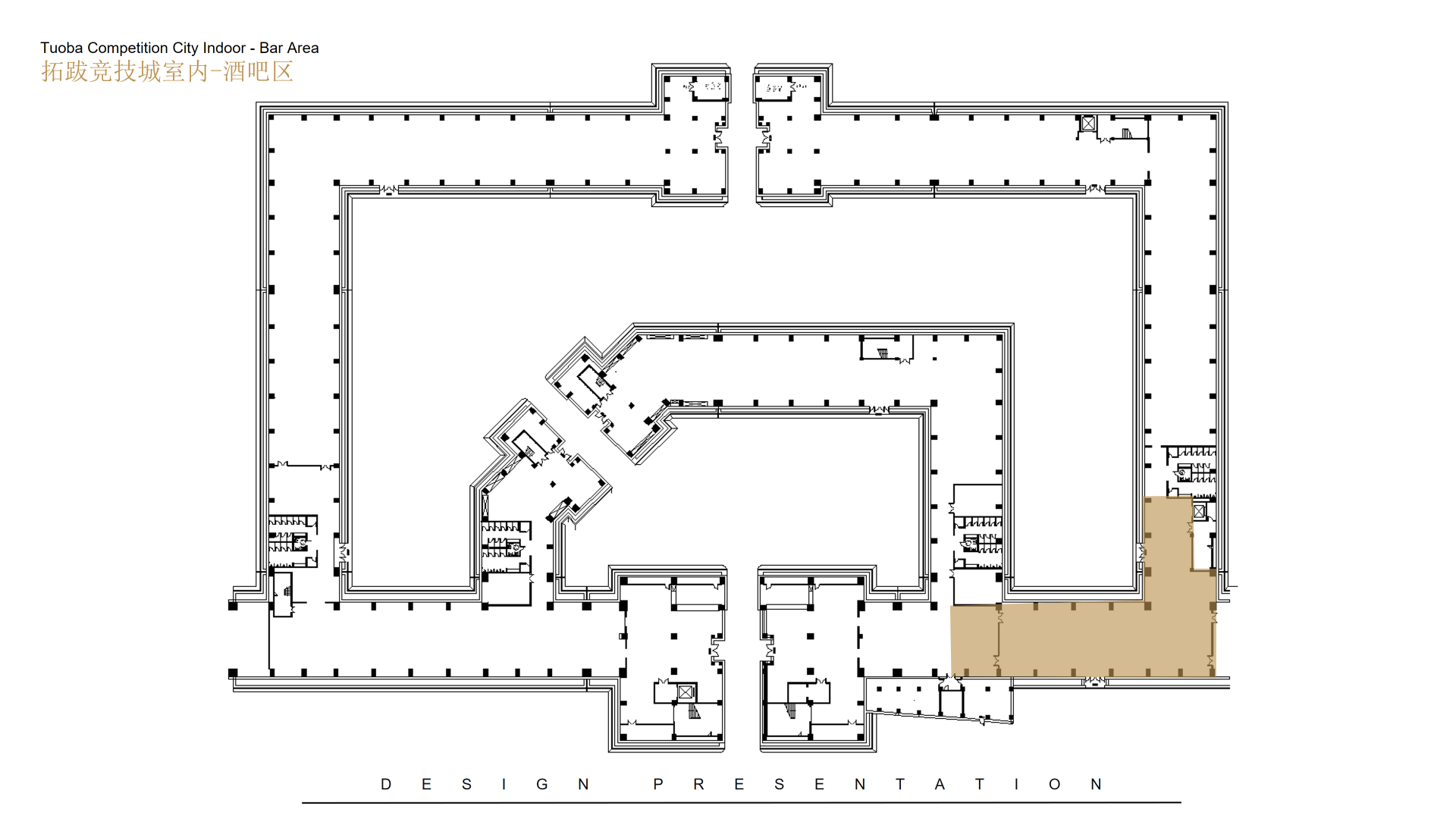
拓跋竞技城室内-酒吧区设计说明
Date
2025-11-14 14:25:05
Posted by
admin
Click
Source
admin
手机扫码访问本页面
中文版
English version
诚邀全球合作伙伴,共拓文旅新蓝海
我们提供免费店铺、统一管理、分成模式,助您轻松入驻。
立即获取资料
中国首个「北魏文化+沉浸竞技」全场景文旅综合体,邀您共筑丝路新商机。
招商详情页
快速链接
一带一路网
商务部
驻外使馆
国家文化和旅游部
大同文旅
山西省文化和旅游厅
联系我们
(+086) 19903521023
contact@tuobacity.com
中国山西大同古城清远门城墙东门内
微信&新媒体
微信扫码
抖音